LOJA - JARDINS - SP

Loja

Descrição

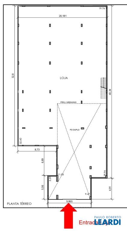
A loja, com 2 andares, fachada 9,9 metros, com 2 banheiros entregues com piso em cerâmica branco acetinado, 1 vaga para utilitários de uso compartilhado entre as lojas e apartamentos não residenciais/serviço de moradia, localizada no térreo, tem acesso pela Rua Augusta, entre as Ruas Oscar Freire e Estados Unidos. Essa é uma região movimentada e que atrai diversos visitantes ao longo da semana e finais de semana.
Ao lado do acesso pela Rua Augusta existe um estacionamento disponível para clientes da loja com uma vaga para utilitários. De acordo com estudo realizado pela Folha de São Paulo, circulam em média, pela Rua Augusta, cerca de 1,2 milhão de pedestres por dia.
O metrô Oscar Freire (linha amarela) se encontra a 750 metros da loja (cerca de 10 minutos a pé) e o metrô Consolação (linha verde) se encontra a 1,2 km do empreendimento (cerca de 15 minutos).
As lojas fazem parte de um condomínio composto por duas torres justapostas, sendo, 15 pavimentos com 327 apartamentos.2603

Detalhes

  • R$ 22.593.000,00
  • R$ 199.350,00
  • R$ 17.277,00
  • 1329.00 ㎡
  • 0
  • 1
  • Comercial

Características

Localização

Mídias Virtuais

Anunciante

Endereço:
Rua Alexandre Dumas, 1711 - 5º andar - Chácara Sto. Antônio , São Paulo - SP
#

Outros Imóveis Relacionados

Quer anunciar seu imóvel conosco?

Nós podemos ajudá-lo a negociar seu imóvel com agilidade e segurança.